Podobne oferty
CKT-MS-1858 -- || -- CKT-MS-1859 -- || -- CKT-MS-1861 -- || --Ostrów Wielkopolski, Centrum
mieszkanie na sprzedaż
Liczba pokoi
4
4
m2
90,00
90,00
zł/m2
7 100,00
7 100,00
639 000 zł
Opis nieruchomości
Oferujemy mieszkanie na sprzedaż bardzo atrakcyjnie zlokalizowane przy Osiedlu Robotnicze w Ostrowie Wielkopolskim.
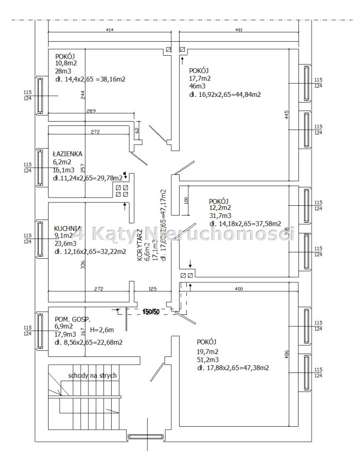
Mieszkanie o pow. 90 m2 położone jest na I piętrze w budynku jednorodzinnym w zabudowie bliźniaczej i składa się z następujących pomieszczeń:
Lokal przeszedł kapitalny remont i charakteryzuje się wysokim standardem wykończenia.
W kwietniu 2025 roku wykonano następujące prace:
Miesięczny czynsz na rzecz zarządcy MZGM wynosi ok. 440 zł. + liczniki na prąd, wodę, gaz oraz wywóz śmieci.
Mieszkanie dwustronne rozkładowe usytuowane od strony wschodniej i zachodniej.
Dużym atutem jest świetna lokalizacja na spokojnym osiedlu z szybkim dostępem do centrum miasta.
W sąsiedztwie znajduje się zaplecze handlowe, usługi, Zieleniak Miejski, przychodnia lekarska oraz szkoła podstawowa i przedszkole.
Do mieszkanie przynależy OGRÓDEK
Polecamy i zapraszamy do umówienia się na prezentację!
Mieszkanie o pow. 90 m2 położone jest na I piętrze w budynku jednorodzinnym w zabudowie bliźniaczej i składa się z następujących pomieszczeń:
- salon
- otwarta kuchnia
- 3 pokoje
- pomieszczenie gospodarcze
Lokal przeszedł kapitalny remont i charakteryzuje się wysokim standardem wykończenia.
W kwietniu 2025 roku wykonano następujące prace:
- instalacja elektryczna
- instalacja gazowa
- instalacja wodno-kanalizacyjna
- sufity: 10 cm wełny + płyta karton-gips
- okna PCV trzyszybowe z roletami wewnętrznymi
- nowe drzwi zewnętrzne oraz wewnętrzne "Porta"
- odnowiona klatka schodowa oraz schody zewnętrzne
- nowa w pełni wyposażona kuchnia: meble pod zabudowę oraz wysokiej jakości nowy sprzęt AGD typu płyta indukcyjna z piekarnikiem, zmywarka oraz lodówka
- łazienka po generalnym remoncie
- kuchenka indukcyjna podłączona z siły
Miesięczny czynsz na rzecz zarządcy MZGM wynosi ok. 440 zł. + liczniki na prąd, wodę, gaz oraz wywóz śmieci.
Mieszkanie dwustronne rozkładowe usytuowane od strony wschodniej i zachodniej.
Dużym atutem jest świetna lokalizacja na spokojnym osiedlu z szybkim dostępem do centrum miasta.
W sąsiedztwie znajduje się zaplecze handlowe, usługi, Zieleniak Miejski, przychodnia lekarska oraz szkoła podstawowa i przedszkole.
Do mieszkanie przynależy OGRÓDEK
Polecamy i zapraszamy do umówienia się na prezentację!
Nota prawna
Opis oferty zawarty na stronie internetowej sporządzany jest na podstawie oględzin nieruchomości oraz informacji uzyskanych od właściciela, może podlegać aktualizacji i nie stanowi oferty określonej w art. 66 i następnych K.C.
Podstawowe
Symbol oferty
CKT-MS-1879
Powierzchnia
90,00 m²
Liczba pokoi
4
Piętro
1
Szczegóły
Rodzaj budynku
bliźniak
Technologia budowlana
cegła
Standard





Opłaty w czynszu
fundusz remontowy
Opłaty wg liczników
gaz, prąd, woda
Stan lokalu
po generalnym remoncie
Okna
PCV
Instalacje
nowe
Balkon
brak
Gaz
tak - miejski
Ogrzewanie
C.O. GAZOWE
Usytuowanie
dwustronne
Pomieszczenia
Podłogi pokoi
panele
Typ kuchni
umeblowana i wyposażona
Rodzaj kuchni
jasna z oknem
Powierzchnia kuchni
m2
Podłoga kuchni
płytki
Typ łazienki
razem z wc
Powierzchnia łazienki
m2
Glazura łazienki
nowego typu
Oddział
Kontakt